Garsoniera, renovata, 40mp, pt investitie sau locuit, 5 minute metrou Gorjului, semistradala

  • 83.000€
Strada Cernișoara, București, România
De vânzare Discutabil
Garsoniera, renovata, 40mp, pt investitie sau locuit, 5 minute metrou Gorjului, semistradala
Strada Cernișoara, București, România
  • 83.000€

Prezentare generală

ID Proprietate: P34549
  • Garsonieră
  • Tipul proprietății
  • 1
  • Cameră
  • 1
  • Baie
  • 40
  • 1967
  • Anul construirii

Descriere

Va oferim spre vanzare o garsonieră CONFORT 1, decomandata, situata semistradal, pe strada Cernisoara, Sector 6, la aproximativ 5 minute de METROU GORJULUI și Piața Gorjului, la Parter inalt cu balcon din 9 etaje. Ai în imediata apropiere Carrefour, Profi, Mega Image, școli, grădinițe, stații STB și Teatrul Masca, o zonă completă, potrivită atât pentru locuit, cât și pentru investiție.

BLOC: ANVELOPAT, cu lift, interfon și camere de supraveghere. Scara este curată, iar zona este verde și liniștită, retrasă de la agitația principală.

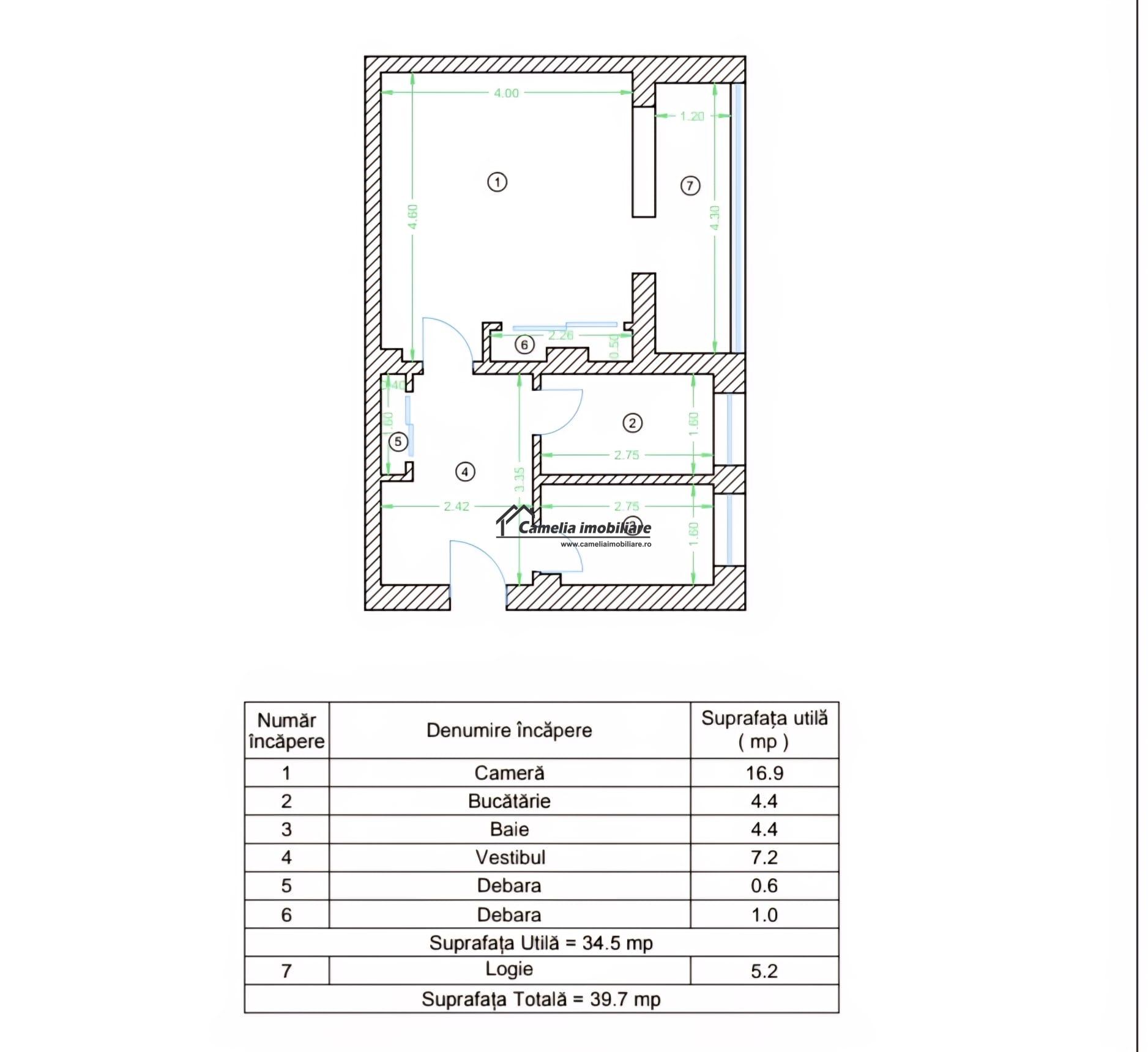
SPAȚIU: Garsonieră cu Sut 40 mp și suprafață construită de 48 mp. Compartimentarea este eficientă, oferind spațiu bine organizat pentru locuire zilnică.

RENOVARE: Recent renovată și zugrăvită, cu instalații schimbate, pregătită pentru mutare imediată. Finisajele sunt curate și întreținute, fără necesar de investiții suplimentare.

CONFORT: Dispune de AER CONDIȚIONAT montat pe balcon, baie cu cadă și geam pentru aerisire naturală. Balconul este închis cu termopan și amenajat ca spațiu tip bar, util atât pentru relaxare, cât și pentru utilizare zilnică

MOBILARE: Se vinde mobilată modern și utilată nou, exact ca în fotografii, fiind pregătită pentru locuit sau închiriere imediată.

ZONĂ: în zonă semistradală, retrasă de la traficul direct al bulevardului Bd Iuliu Maniu sau Bd Uverturii. Acces rapid către Piața Gorjului, Carrefour, Mega Image, Lidl, Kaufland, Parcul Păcii și multiple stații STB, in zona piata Veteranilor, metrou Lujerului, Parcul Liniei, Mall Plaza, parc Politehnica, Institutul Politehnicii, Facultatea Spiru Haret, Facultatea Electronica, Cotroceni, Gradina Botanica, clădiri de birouri și zone comerciale, ceea ce face garsoniera potrivita pentru un stil de viață activ și bine conectat.

INVESTIȚIE: Poziția lângă metrou și piață, într-o zonă cu cerere constantă, face ca proprietatea să fie ușor de închiriat, potrivită pentru venit pasiv sau locuință personală.

ACTE: Garsoniera este liberă și disponibilă imediat. PREȚ: 83000 euro, usor discutabil, se accepta credit.
CONTACT: pentru mai multe poze, schita sau vizionare va asteptam sa sunati sau mesaj la 0730885885 telefonic sau whatsapp. Este locul unde poti sa spui ACASA.

  • Adresă Strada Cernișoara, București, România
  • Zonă Gorjului

Detalii

Actualizat la aprilie 16, 2026 la 8:45 pm
  • Preț: 83.000€
  • Suprafața proprietății: 40 m²
  • Suprafața terenului: 48 m²
  • Cameră: 1
  • Baie: 1
  • Anul construirii: 1967
  • Tipul proprietății: Garsonieră
  • Statusul proprietății: De vânzare
  • Orientare: Est
  • Stare: Renovat
  • Mobilare: Mobilat
  • Confort: Confort 1
  • Decomandare: Decomandat
  • Alte detalii preț: discutabil
  • Comision: 1,5%

Programează vizita

Informațiile tale

Compară anunțuri

Comparaţie
Acasa Top Expert
  • Acasa Top Expert